Skip to main content

Axis 2

Venta de Terrenos, Build to Suit y Renta de Bodegas

Parque Industrial "Axis 2" en Tonalá, Jalisco.
AXIS 2 es la segunda etapa de uno de los parques industriales más modernos y completos de la Zona Metropolitana de Guadalajara. Diseñado para industria media, cuenta con entrega inmediata y está listo para escriturar, lo que lo convierte en una opción ideal para empresas que buscan establecerse sin demoras. Ubicado estratégicamente en el corredor hacia el Bajío y el Aeropuerto Internacional, AXIS 2 ofrece una oportunidad única para compañías que necesitan infraestructura de primer nivel, conectividad logística y potencial de crecimiento inmediato.

UBICACIÓN Axis 2

Sobre el Nuevo Periférico Oriente, a 500 m. de Carretera a Zapotlanejo, en Tonalá, Jalisco
Entorno Inmediato:
  • En la salida a Zona del Baíjo, Altos de Jalisco y Centro de la República
  • A 5 minutos del Aeropuerto Internacional de Guadalajara
  • A 10 minutos del Macrolibramiento
Instrucciones para llegar usando Google Maps o usando Waze

LOTES INDUSTRIALES

Lotes disponibles en venta, con entrega y escrituración inmediata:
  • # lote - superficie - precio
  • 16 - 6,833.61 m.2 - $53,302,158
  • 17 - 7,195.06 m.2 - $56,121,468
  • 28 - 15,665.48 m.2 - $122,190,744
Estrena tu bodega hoy
y págala a crédito
Conoce las opciones que el mercado tiene para ofrecerte y conserva tu liquidez

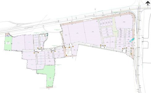
MASTER PLAN

Con más de 294,000 m² de superficie total y 203,700 m² vendibles, AXIS 2 ofrece:
✅ Terrenos industriales en venta desde 2,000 m²
✅ Proyectos Build to Suit (BTS) para necesidades específicas
✅ Bodegas en renta desde 2,000 m² hasta 50,000 m² (en desarrollo)
✅ Entrega inmediata y listos para escriturar

INFRAESTRUCTURA:

  • Urbanización completa
  • Energía eléctrica
  • Agua potable y drenaje
  • Red para voz y datos
  • Seguridad 24/7
  • Sistema contra incendios
  • Amplias vialidades

BODEGAS EN RENTA EN Axis 2

Disponibilidad de Bodegas en Renta en Parque Industrial Axis 2
Bodega 6
Parque Industrial Axis 2
Sup. Lote:
4636.49 m.2
Sup. Bodega:
2988.65 m.2
Sup. Oficinas:
0 m.2
Sup. Total:
2988.65 m.2
$ x m.2:
$140
$ x mes:
$418,411
Bodega 13
Parque Industrial Axis 2
Sup. Lote:
5446.71 m.2
Sup. Bodega:
3688.73 m.2
Sup. Oficinas:
0 m.2
Sup. Total:
3688.73 m.2
$ x m.2:
$140
$ x mes:
$516,422
Contáctanos para mas información de precios y disponibilidad de la renta de bodegas.

Para más Información

Permite que un Asesor se ponga en contacto para darte mas información y aclarar cualquier pregunta, simplemente llenando este formulario:
Por favor teclea aqui tu nombre completo.
Por favor revisa que tu correo-e este bien escrito.
Por favor revisa tu numero de celular.
Invalid Input

* Indica Dato Requerido

ASESORÍA PERSONALIZADA

Asesoria Personalizada

Asesoria Personalizada

Asesoria Personalizada